Map 23 Lot 11-23 Frederick LaneNottingham, NH 03290
Due to the health concerns created by Coronavirus we are offering personal 1-1 online video walkthough tours where possible.




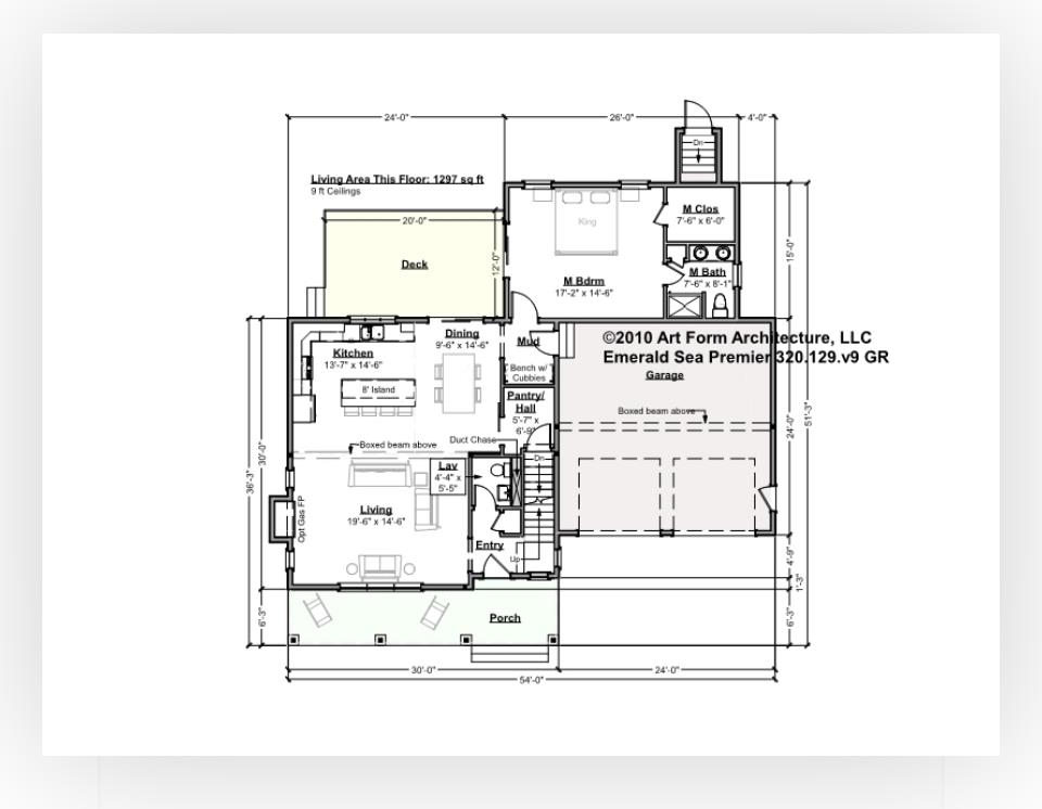
Welcome to Peekaboo Estates, Nottingham’s newest premier subdivision, where high-end craftsmanship meets the freedom to create your dream home. Whether you choose from our thoughtfully designed plans or bring your own vision, this is a rare opportunity to build exactly what you want in a beautiful, private setting. Featured here is a stunning “Emerald Sea Premier” style home offering approximately 2,769 sq ft of thoughtfully designed living space, including 4–5 bedrooms and 3.5 baths, with flexible layouts to suit your lifestyle. The open-concept design blends modern living with timeless style, featuring spacious living areas, a designer kitchen, and seamless indoor-outdoor flow perfect for entertaining or relaxing. The first-floor layout offers convenience and versatility, while the second floor provides generous bedrooms and additional living space, including the potential for a bonus room or future expansion. High-end finishes, quality materials, and attention to detail come standard, with the ability to customize selections to match your personal style. Set in the desirable town of Nottingham, this new development offers a peaceful setting with easy access to major routes, the Seacoast, and all that Southern New Hampshire has to offer. Bring your plans or choose one of our plans. Your dream home starts here at Peekaboo Estates.
| 12 hours ago | Listing updated with changes from the MLS® | |
| 12 hours ago | Listing first seen on site |
Copyright 2026, PrimeMLS, Inc. All rights reserved. This information is deemed reliable, but not guaranteed. The data relating to real estate displayed on this display comes in part from the IDX Program of PrimeMLS. The information being provided is for consumers’ personal, noncommercial use and may not be used for any purpose other than to identify prospective properties consumers may be interested in purchasing.
Last checked: 2026-03-25 11:14 AM UTC



Did you know? You can invite friends and family to your search. They can join your search, rate and discuss listings with you.