547 Tyler RoadWebster, NH 03303
Due to the health concerns created by Coronavirus we are offering personal 1-1 online video walkthough tours where possible.




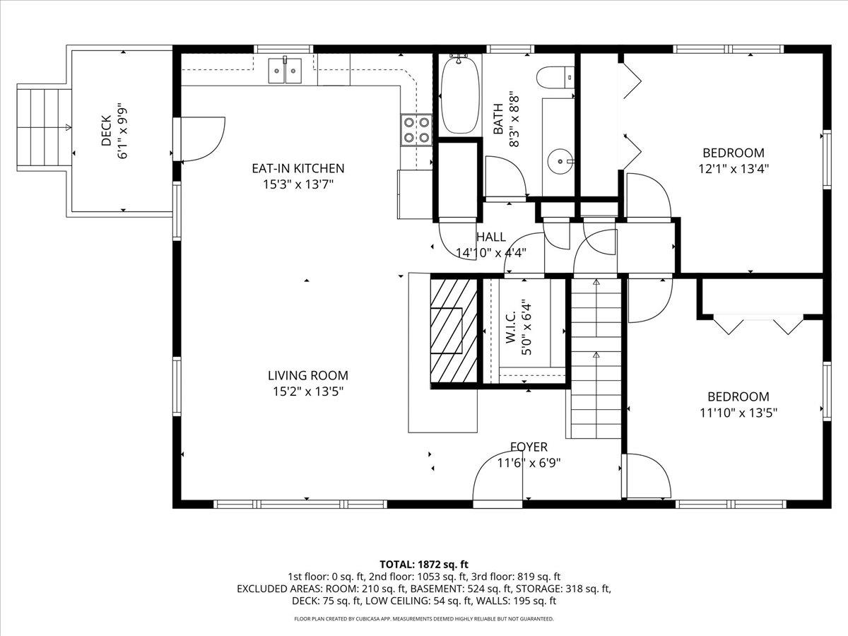
Welcome to this beautifully maintained country Cape-style home offering 1,960 square feet of versatile living space on a private one-acre lot. Perfectly positioned just minutes from the highway, this property combines peaceful country living with convenient commuter access. Designed for flexible living, the main level features two spacious bedrooms and a full bathroom, ideal for one-level living. Warm hardwood floors flow throughout the cozy living room that flows seamlessly to the kitchen space. Two cozy wood stoves provide efficient alternative heat sources, creating a comfortable and energy-conscious environment during New England winters. Upstairs, you’ll find additional generously sized bedrooms and a second full bath, offering space for guests, home offices, or growing households. The layout provides excellent separation of living areas while maintaining the classic charm Cape homes are known for. The dry, unfinished lower level offers outstanding potential for future expansion—perfect for a home gym, media room, workshop, or additional finished living space. Set on a level one-acre lot with room for gardening, outdoor entertaining, or recreation, this property delivers the best of country living with modern convenience. If you’re searching for a Cape-style home with acreage, hardwood floors, alternative heating options, and easy highway access, this home is a must-see.
| 40 minutes ago | Listing updated with changes from the MLS® | |
| 7 hours ago | Listing first seen on site |
Copyright 2026, PrimeMLS, Inc. All rights reserved. This information is deemed reliable, but not guaranteed. The data relating to real estate displayed on this display comes in part from the IDX Program of PrimeMLS. The information being provided is for consumers’ personal, noncommercial use and may not be used for any purpose other than to identify prospective properties consumers may be interested in purchasing.
Last checked: 2026-02-13 10:21 PM UTC



Did you know? You can invite friends and family to your search. They can join your search, rate and discuss listings with you.